A proposed auto repair business in a residential West Tisbury neighborhood got a green light Thursday from the Martha’s Vineyard Commission.
The application from West Tisbury Auto Care for a home-based business on Vineyard Meadow Farms Road has drawn opposition from neighbors concerned about potential hazardous runoff affecting local wells, which already have suffered contamination from compounds known as forever chemicals.
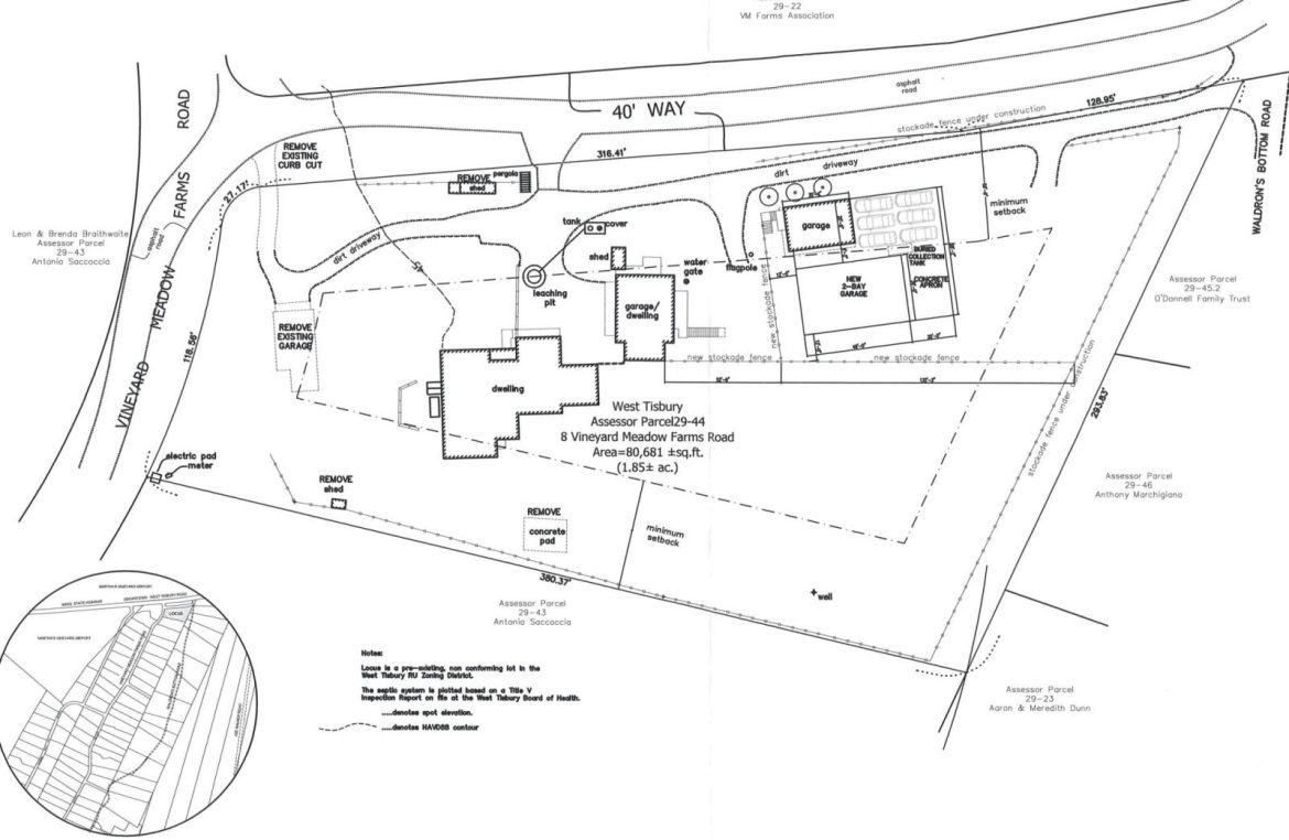
The West Tisbury planning board also is on the record opposing the project as inappropriate for the town’s rural district.
The Martha’s Vineyard Commission, however, found unanimously that West Tisbury Auto Care offers a significant potential benefit to the Vineyard, where motorists often must wait weeks for appointments at the few garages here or take their vehicles off-Island for service.
To address environmental concerns, commissioners imposed conditions on the approval that include a series of safety measures to contain spills and prevent runoff.
“The environmental controls … have significantly increased with respect to where this project started off,” chair Peter Wharton said.
The owners, Katherine Voshell and Nick Lucas, will be limited to no more than seven customer cars on the property, and all cars there for service must be parked on an industrial-grade epoxy pad that chemical spills can’t permeate.
The two-bay garage also will be coated with epoxy, with sealed tanks for spills and runoff.
Linda Sibley, the commissioner’s longest-serving member, noted that home-based repair services used to operate without such facilities.
“When I moved here 50 years ago, we had what we called shade-tree mechanics everywhere,” Ms. Sibley said.
Ms. Voshell and Mr. Lucas also will need commissioners’ sign-off on an environmental insurance policy before opening for business, according to the terms of the approval.
Thursday’s decision clears the way for the owners to seek local permits.
In other business, the commission approved the construction of restrooms at the old Hinckley’s hardware store on Beach Road in Vineyard Haven, to serve patrons of the Nina’s Dine-n-Dash lunch wagon, and the reconstruction of a loading dock at Martha’s Vineyard Hospital in Oak Bluffs.
Both projects now head to town officials for permitting.
Commission members also agreed that a proposed Tisbury zoning bylaw change conforms to the commission’s policy for districts of critical planning concern (DCPCs).
Tisbury voters will decide April 28 whether or not to designate portions of Mud Puddle Road and Old Sailors Burying Ground Road as special ways, which would protect them from development.
Also Thursday, commission researcher Alex Elvin presented a new manual of recommended building materials, intended to guide applicants toward choosing more environmentally-friendly products when developing projects.
The manual is simply for guidance and not an official Martha’s Vineyard Commission policy, he said.
